Home
Profil
Philosophie
- Leistungen
- Vorträge
Projekte
Architektur
- Bauen im Bestand
Energie
- Energieausweis
- Energieberatung
Kontakt
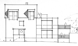
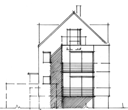
Projekte
Eindrücke meiner Arbeit
Umbau und energetische Sanierung und
Planungsgutachten eines Zweifamilienhaus
Standort: Dreieichenhain
Baujahr: 1957
Immobilienart: privates Wohngebäude
Sanierung: geplant 2011
>>zur Übersicht
Eindrücke der Planung:
Datenschutz - Impressum
-
© Copyright 2011