Logo Archtitektur und Energie
Projekte
Eindrücke meiner Arbeit
Bild1
Sanierung eines historischen Einfamilienhauses aus dem Jahre 1911
Standort: Dietzenbach
Baujahr: 1911
Immobilienart: privates Wohngebäude
Sanierung: ausgeführt 2017

Nach Abbruch diverser Nebengebäude wurde das Haus fast in seine ursprüngliche Kubatur zurückversetzt. Nur der Anbau der Garage mit dem darüber liegendem Wohnraum aus dem Jahre 1957 wurde aus Nutzungsgründen beibehalten. Der von außen zugängliche Eingang zum Ladenlokal mit den beiden straßenseitigen Räumen im EG blieb erhalten . So wird dieses Haus nun von einer 4-köpfigen Familie genutzt, die in den Ladenräumen ein Gewerbe betreibt. Im Dachgeschoss entstand nach Abbruch von Zwischenwänden ein großzügiger Wohnraum. Liebenswerte Details wurden erhalten und aufgearbeitet.

Der Wohnbereich wurde durch wenige gezielte gestalterische Eingriffe im EG den heutigen Bedürfnissen nach Licht und Offenheit angepasst. Die Sanitär- und Elektroinstallation wurde komplett erneuert, eine Pelletanlage mit Brennwerttechnik an Stelle der alten Gasheizung installiert.

Die thermische Hülle wurde, ohne die Straßenfassade zu verändern, den heutigen Anforderungen angepasst. So erreicht das Haus das Niveau eines Effizienzhauses 115
>>zur Übersicht


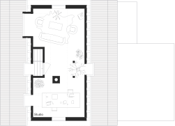
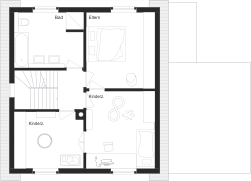
Eindrücke des Objekts nach der Sanierung:


Vorher Foto

Vorher Foto

Nachher Foto

Nachher Foto

Nachher Foto

Nachher Foto

Nachher Foto

Nachher Foto

Nachher Foto

Nachher Foto